Другие проекты в продаже
12-я линия Васильевского острова
от 39.66 м2
площадьМонолит М400
материал стенот 17,8 млн.
стоимостьАрхитектурный облик здания вдохновлён образами петербургского модерна и французского ар-деко. Жилые секции образуют парадный двор-курдонёр, ограниченный с трёх сторон и раскрывающийся в сторону 12 линии. Во дворе выполнено благоустройство и ландшафтный дизайн по авторскому дизайн-проекту.
На подземном этаже разместятся кладовые и подземный паркинг с доступом на лифте из каждой секции. Для жильцов и гостей организовано лобби с зоной ожидания и стойкой консьержа. В состав жилого комплекса входит памятник архитектуры – деревянный особняк Бремме – Он будет реконструирован и приспособлен под коммерческие функции.
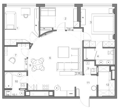
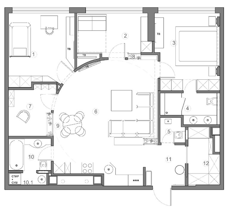
ТИПОВЫЕ ПЛАНИРОВКИ КВАРТИР
Площадь от 140 м2
Стоимость от 15.000.000 руб
Площадь от 41.68 м2
Стоимость от 20.106.500 руб
Площадь от 52.13 м2
Стоимость от 29.338.900 руб
Площадь от 74.22 м2
Стоимость от 40.756.500 руб
Клубный дом Amo это
Облик комплекса создан мастерской Liphart Architects и унаследовал благородство петербургской традиции зодчества. Акцент на деталях, продуманный декор, панорамные окна с утонченными балконными решетками и мансардный этаж с террасами делают его неповторимым.
Искусная резьба по штукатурке, уложенной в несколько слоев, создает эффектный, объемный декор. Узоры оживают благодаря итальянской технике сграффито — любимому приему архитекторов эпохи Ренессанса и их последователей середины XX века.
Зигзагообразная линия стен раскрывает солнечным лучам южную часть дома и формирует ступенчатую, неординарную, авторскую форму дома. Каждый фрагмент АМО имеет собственное лицо, но подчиняется общему ритму и замыслу творца. Единую композицию создают силуэты домов с узкими фасадами, карнизами, эркерами и окнами.
Центральная входная группа включает лобби с зоной ожидания и стойкой консьержа для жильцов и гостей в холле первого этажа секций А и В, общей площадью более 85 м2
Чтобы сберечь ваше драгоценное время, мы внедрили программу передачи данных счетчиков, — просто скачайте мобильное приложение.
Для беззаботной жизни и ощущения безопасности сигналы с камер на территории дома, двора и подземного паркинга передаются в диспетчерскую и на экран вашего смартфона.
Лифт, расположенный в каждой секции, также обеспечивает комфортный спуск в подземный паркинг. Шахты лифтов отделены от несущих стен здания, минимизируя шумы и вибрации.
Грамотно подобранное сочетание трав, злаков, цветов, кустарников и деревьев, чтобы наслаждаться поэтичной тишиной и красотой природы.
Другие проекты в продаже
НЕ НАШЛИ ПОДХОДЯЩЕЕ?
Укажите параметры недвижимости и мы подберем варианты в течение дня бесплатно